Обяви 0 За нас Контакти
Продава 3-СТАЕН
град Пловдив, Христо Смирненски
Мол Пловдив
При запитване
Коригирана в 14:11 на 26 януари, 2026 год.
Обявата е посетена 260 пъти.
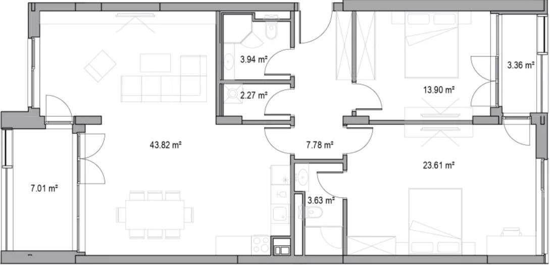
Площ:
148 m2
Етаж:
3-ти от 7
ТEЦ:
ДА
Строителство:
Тухла, Ще бъде въведен в експлоатация 2026 г.

Описание на имота:


реф.2190
БЕЗ КОМИСИОН OT KУПУВАЧА! ДИРЕКТНА ЦЕНА ОТ ИНВЕСТИТОР! 'ЗЛАТЕН КЛЮЧ-НЕДВИЖИМИ ИМОТИ' предлага за продажба ТРИСТАЕН АПАРТАМЕНТ с изложение: изток/запад, представляващ: дневна с трапезария и кухненски бокс, две самостоятелни спални, входно антре, склад, две бани с тоалетни, 2 лоджии.

Намира се в модерно и съвременно проектиран ЖИЛИЩЕН ПАРК с АКТ 14 в непосредствена близост до МОЛ Пловдив.

Представлява две сгради от седем жилищни етажа, елегантни и луксозни фоайета с височина от 6 метра. На всеки етаж са проектирани жилища с различни площи и отлични разпределения, със светла височина на тавани 2,80 метра и големи прозорци, осигуряващи естествена светлина. На горните етажи на сградите са разположени премиум апартаменти, разполагащи с обширни частни тераси, разкриващи гледки към две от пловдивските тепета Младежки хълм и Бунарджика. На партерен етаж се намират помещенията с обслужващи функции и гаражи. Сградите ще разполагат с подземен паркинг с подземни паркоместа, като част от тях са предвидени специално за електрически автомобили и ще бъдат оборудвани със зарядни станции. Комплексът ще разполага с просторна градина с растителност, уютни кътове за релакс и детска зона.За спокойствието на обитателите ще бъде осигурено система за контрол на достъпа и видеонаблюдение.

За строителството се използват материали от най-висок клас: Подова шумоизолация; Подово отопление Rehau; Висок клас алуминиева дограма Reynaers Master Line 8 Hi; Вградени комарници към дограмата; Отопление от ТЕЦ; Вентилируема фасада с HPL на Fundermax; Фасадна топлоизолационна система с каменна вата- 10 см; Система за превенция от наводнения; Подготовка за термопомпи на Премиум апартаментите; Подготовка за умен дом; Декинг и перголи за големите тераси; бързи и надеждни асансьори със скорост на придвижване 1м/с;

Разсрочена схема на плащане в етапа на строителството! За повече информация не се колебайте да се свържете с нас.

Осигуряваме на клиентите си качествено обслужване! Оказваме посредническа дейност от началото до финализирането на сделка за покупко-продажба на имот.

'Домът не е просто място, където се прибираме вечер, а една основа, върху която градим заобикалящия ни свят!'

Особености
Тухла
Асансьор
С паркинг
Лизинг
Видео наблюдение
Контрол на достъпа
За контакт:
0887744014

Този имот се предлага само на частни лица
Брокер:
Стефана Маркова
0887 744 014
Още оферти от брокера: Продава | Дава под наем | Купува | Наема
Агенция:
ЗЛАТЕН КЛЮЧ-НЕДВИЖИМИ ИМОТИ
0887 744 014
ЗЛАТЕН КЛЮЧ-НЕДВИЖИМИ ИМОТИ logo
Медал за прослужено време
В imot.bg от 2018 г.
zlatenkluch.imot.bg
Адрес:
област Пловдив, гр. Пловдив, Център, ул.' Софроний Врачански' 2, ет.2
ИЗПРАТИ ЗАПИТВАНЕ
ИЗПРАТИ ЗАПИТВАНЕТО

Продава 3-СТАЕН
град Пловдив, Христо Смирненски
Мол Пловдив
Обява: 1c175006219698407

При запитване

ЗАПАЗИ ОБЯВАТА

Местоположение: град Пловдив, Христо Смирненски, Мол Пловдив

Допълнителни данни за имотите в района и сравнение с други райони

Покажи

Период

и 5 месеца

* Средните цени са определени чрез медианна стойност